Projeto Estrutural e Hidráulico integrado (BIM).

 

Residência de 450 m² - Condimínio Santa Isabel - Louveira/SP.

 

 

O que o BIM proporciona:
• Prever e antecipar problemas da obra;
• Menos desperdício de materiais, mais economia;
• Evitar retrabalho;
• Execução sem improvisos, mais rápida e limpa.

Projeto Estrututal 

Edifício Comercial - Francisco Morato/SP.

 

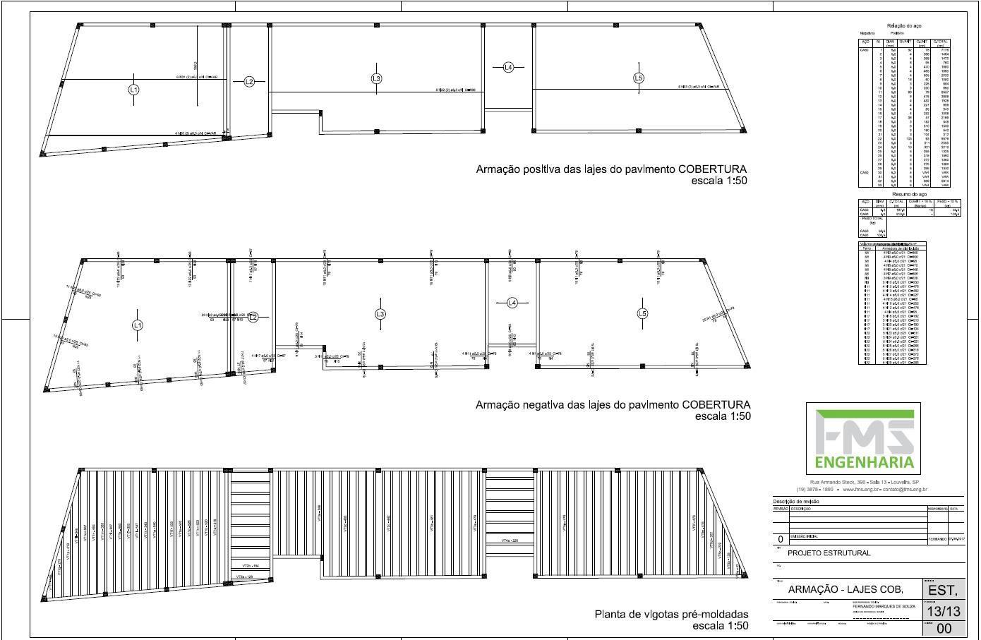
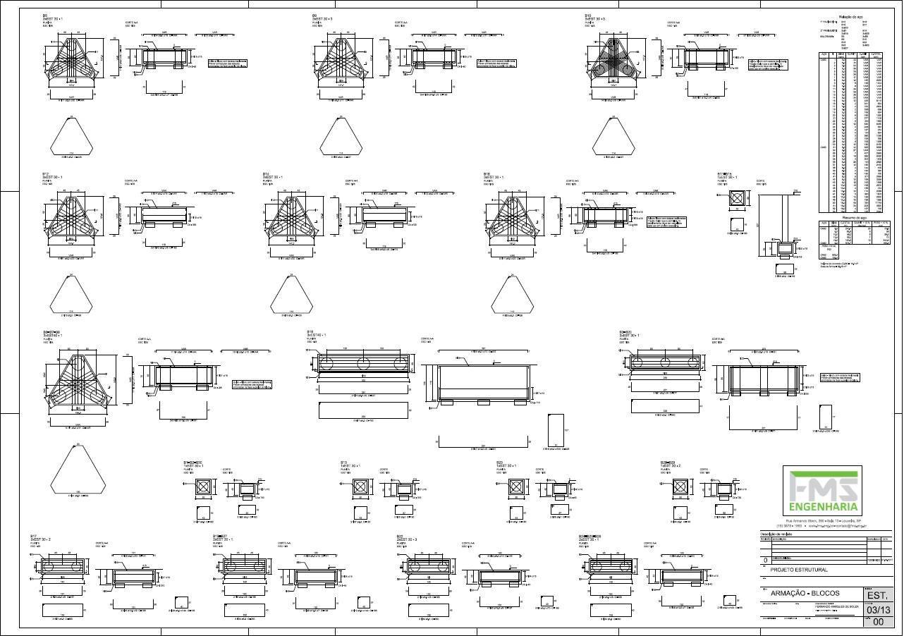
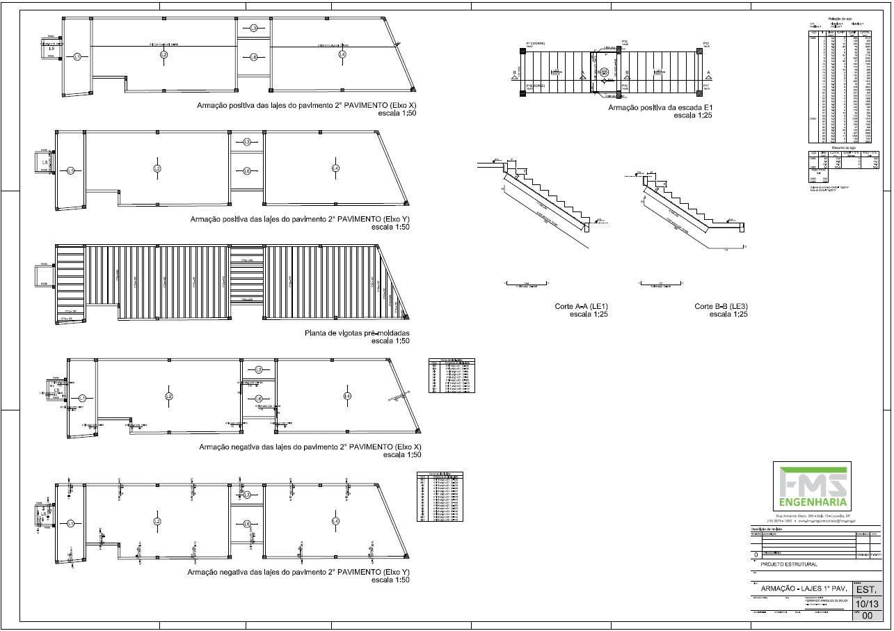
Projeto Estrutural

Centro de Zoonoses - Francisco Morato/SP.

Projeto Estrutural Residencial

Residência de 231,12 m² - Jardim Primavera - Itupeva/SP.

Pé direito duplo.